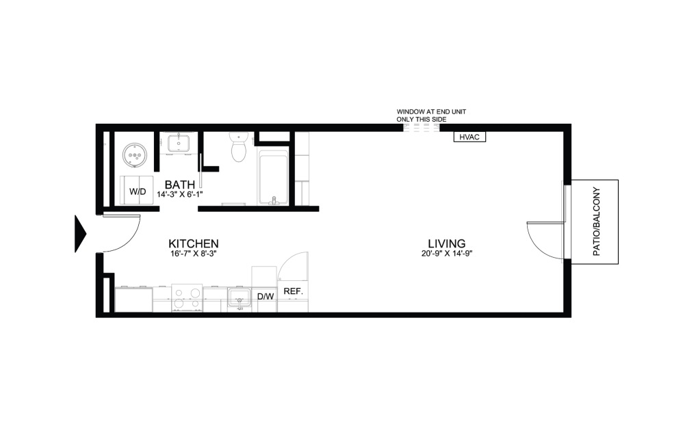
Studio
Studio1 bath568 sq. ft.
$1,222 /mo*

* Monthly leasing prices include base rent plus all required monthly fees. Optional services, variable or usage-based charges, and any required move-in or move-out fees are not included.
Floor plans are artist’s rendering. All dimensions are approximate. Actual product and specifications may vary in dimension or detail. Not all features are available in every home. Prices and availability are updated regularly. Contact a representative for details.